Un aménagement sobre, chaleureux et responsable, au service d’un lieu de création et de production.
Ce projet consiste en l’aménagement des nouveaux bureaux d’une entreprise spécialisée dans la création audiovisuelle.
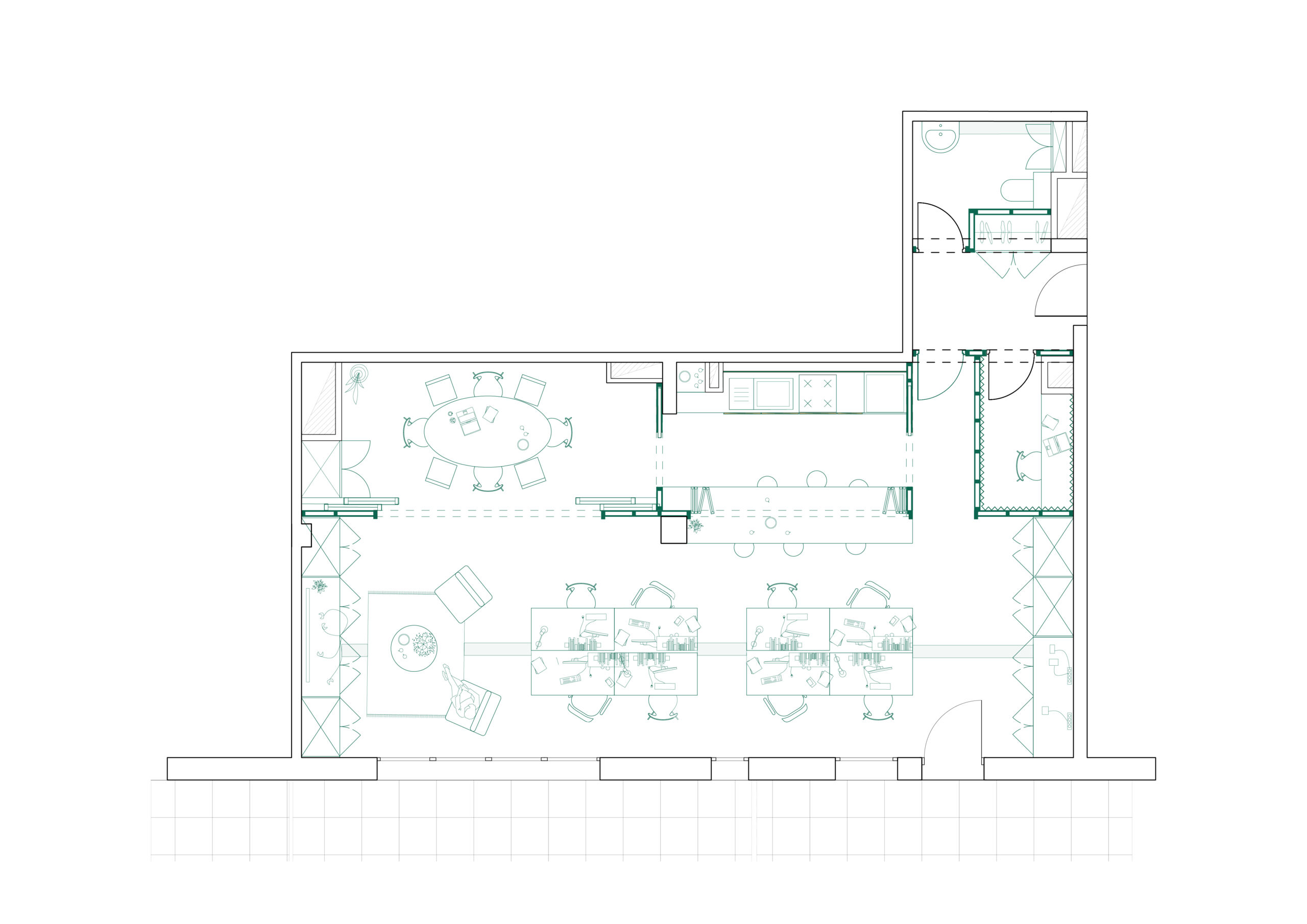
Implanté dans un volume livré au stade du « béton brut » , l’enjeu était de transformer cet espace capable de 80m² en un environnement accueillant, mobilisant un minimum de matière.
L’aménagement repose sur un contraste affirmé entre le béton existant, volontairement laissé apparent, et une présence forte du bois, utilisé comme matériau principal pour structurer les espaces.
L’organisation spatiale favorise la modularité : la cuisine et la salle de réunion s’ouvrent largement sur l’espace bureau grâce à des menuiseries coulissantes et accordéon, révélant une configuration conviviale où un véritable bar central prend place au cœur du projet.
Programme : Aménagement intérieur de bureaux
Lieu : Lille, rue Caumartin
Maîtrise d’ouvrage : Privée
Surface : 80m²
Coût travaux : n.c
Mission : Mission complète
Date de livraison : chantier livré en Juin 2026
Dans une démarche de réduction de l’impact environnemental du projet, l’agence a eu recours à la plateforme de réemploi « Le Parpaing » située à Roubaix. Plusieurs éléments de second œuvre ont ainsi été récupérés : porte d’entrée vitrée, lavabos, évier ou encore poignées du mobilier bois réalisé sur-mesure.
Les rangements, en contreplaqué de peuplier ont été dessinés pour accueillir le matériel audiovisuel (caméras, micros, espace de rechargement du matériel..) d’une part et organiser un espace de détente au sein des bureaux de l’autre.


